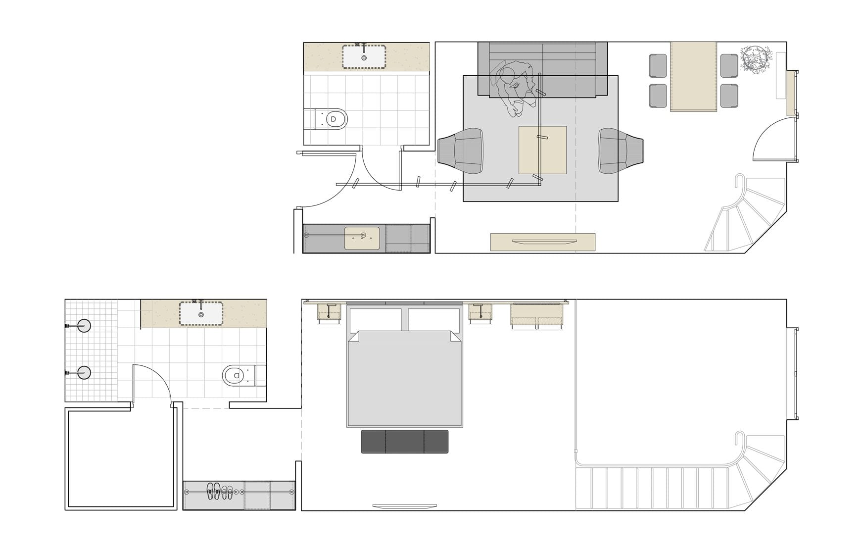
Presidental suite – neli erinevat kahekorruselist numbrituba suurusega 48 m2, kokku 192 m2. Iga tuba on kujundatud erinevalt, lähtudes toa teemast.
POP & ROCK – efektne ja kontrastne, julged värvid, tumedad detailid ja efektselt kirju prantsuse parkett põrandal.
NORDIC – põhjamaiselt hele ja karge tuba; lihtsad ja selged jooned, naturaalsed materjalid ja mõned mustad detailid.
ROMANTIC – õdus ja luksuslik, julged materjalid ja värvitoonid, marmorist mööblidetailid, kuldsed aksessuaarid.
WELLNESS – hele ja neutraalne; rahuliku kujundusega, vanadest palkidest laud, looduslikes toonides õdus ning puhkuseks loodud numbrituba.
3D illustratsioonid: Palazzo











